F a r n s w o r t h

Projet 1ère année

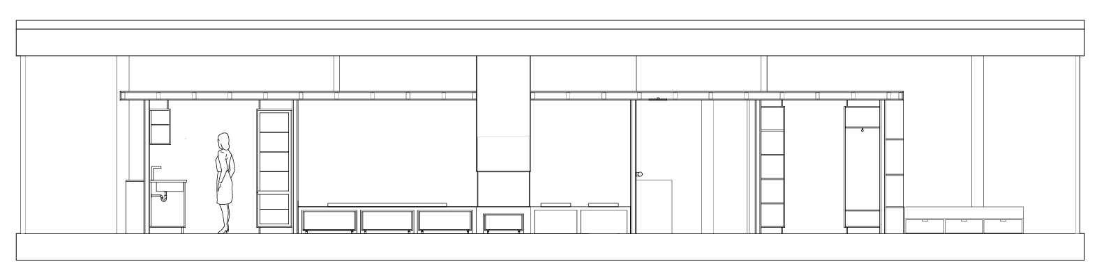
En hommage à Ludwig Mies van der Rohe, ce projet explore une relecture contemporaine de l’aménagement intérieur de la Farnsworth House.
L’idée directrice est de créer un espace insulaire autonome, pensé comme un objet architectural à part entière, qui vient s’inscrire au cœur du volume existant sans jamais toucher son enveloppe.

Ce bloc compact, aux lignes sobres et géométriques, structure l’espace tout en respectant la transparence, la légèreté et la radicalité du geste moderniste d’origine. Il redéfinit les usages, organise les circulations et propose une nouvelle manière d’habiter la maison, sans altérer son rapport unique à la nature.